由于很多小伙伴反饋說,想要看小面積的展廳設計方案,本次合作商展廳案例分享,就為大家帶來華洲陜西西安戰略合作商95㎡的展廳建店設計,一起欣賞小面積展廳的設計呈現。

設計思路
DESIGN IDEAS
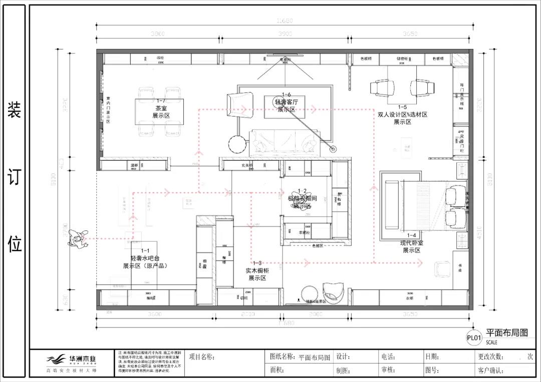
此次展廳的設計面積為95㎡,較小的面積如何實現功能與設計的完美結合,這就非常考驗設計師對于空間布局的規劃以及消費者內在需求的把控,從而打造具有舒適體驗感的高顏值展廳。
設計師表示:小空間的設計也要系統而全面,還要更加講究精準化的設計落地,將主題和內涵細致、直接的鋪展開,可以幫助消費者迅速了解設計特點。
設計師將整體空間劃分為產品展示區和情境空間展示區兩大類,選材與花色品類精選當下潮流的產品系列;情景展示選取輕奢、現代、極簡三大主流風格,對客廳、臥室、衣帽間等生活場景進行模塊化演繹。
結合回字形的動線設計,既能清晰地區分每個空間風格,又能讓消費者的觀賞線路產生合理閉環,使其擁有豐富且直觀的觀賞體驗。
情景空間展示
DISPLAY OF SCENE SPACE
輕奢客餐廳
客廳是家裝設計的核心區域,考量到沙發等家具裝飾會占用很大的空間,而電視墻的設計往往能決定客廳的風格基調,因而設計師著重展示電視背景墻及柜體設計。
輕奢風格是如今深受消費者喜愛的設計風格之一,設計師采用波爾多胡桃搭配煙灰,奠定了空間雅致的基調,木紋與素色的組合,真實而自然,色塊的搭配分明而和諧,線條的設計也追求簡約,營造了精致大氣的客廳空間,彰顯了不凡的生活品味。

Design and color
① 柜體:S8002-SM-WB 波爾多胡桃
② 門板+跳色:S7009-SM-EA 納維亞爵士白
③ 門板:S9011-SM-EA 煙灰
現代臥室
臥室是讓我們回歸平靜的地方,而舒適簡單就成為了它重要的空間屬性,能在每個夜晚裹挾著對新一天的期待輕松入眠。
現代風格追求時尚簡約,設計師采用了云灰與斯圖加橡木相搭配,營造了平穩而舒緩的自然意境,去除了多余的裝飾,追求功能本身,而采用無主燈設計更營造了舒適溫暖的空間氛圍。

臥室中的衣柜采用設計功能層次分明,采用掩門柜、開放柜、抽屜相結合,充分的考慮了多樣化的收納需求,一板到頂更顯簡潔美觀,均勻分隔更顯整齊干凈,而玻璃與金屬元素的植入也凸顯了時尚與精致,充滿美感。

Design and color
① 墻板+門板:S9011-SM-EA 煙灰
② 墻板+柜體:S7006-1-Z-WE 斯圖加橡木(深)
極簡衣帽間
衣帽間的重要職能就是整齊收納、方便尋找,給服飾一個專屬于它的空間,收藏關于美好和時尚的秘密,還有每天煥然一新的自己。
衣帽間從來不是大空間的專屬,它屬于每一個追求時尚與美麗的個體,而設計師也完美的詮釋了收納全能的含義。開放式與掩門式收納相結合,柜體的分割也考慮到不同衣物的收納需求;加拿大楓木與米蘭布紋相搭配,是自然的純粹與文藝的細膩相碰撞,更凸顯了時尚生活的藝術品味。

Design and color
① 柜體:Z6010-F16 加拿大楓木
② 抽面:S8006-Z-CA 米蘭布紋
新中式茶室
茶室,一個可以靜心、品茶的地方,講究的是意境,這不是靠傳統元素的堆砌,而是領悟其內涵,從而表達出的從容與自得。
設計師采用波爾多胡桃與納維亞爵士白相搭配,木石結合更有自然意境,素雅的色彩也營造出質樸與悠然。柔和的燈光更顯松弛,古樸的家具裝飾也與氛圍更加契合,整體空間有中式的韻味,也有現代的演繹,具有很強的突破性。

Design and color
① 柜體:S8002-SM-WB 波爾多胡桃
② 門板+跳色:S7009-SM-EA 納維亞爵士白
新中式玄關
入戶玄關是顏值與功能的結合,一方面是家裝風格的目錄,一方面也要滿足日常生活中的需求。
設計師選用高級灰與波爾多胡桃相結合,在門板大面積灰色的襯托下,木紋的自然與細膩更為矚目,凸顯雅致的意境。玄關柜有掩門式的衣柜和鞋柜,也有留空的置鞋處,既顯得大氣簡約,又能方便快速換取。

Design and color
① 柜體+抽面:S8002-SM-WB 波爾多胡桃
② 門板:S9001-SM-EA 高級灰